Lokacija

Brdo pri Kranju

Izvedba

2014-2016

Projekt

2012-2014

Vabljeni natečaj

2012 (1. nagrada)

Investitor

Nogometna zveza Slovenije

Avtorji

Lena Krušec, Tomaž Krušec, Vid Kurinčič

Avtorji krajinske ureditve

Studio AKKA

Fotografije

Miran Kambič

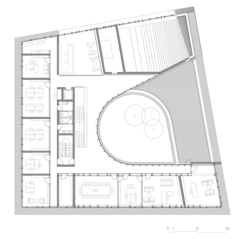
Upravna stavba NZS

Upravna stavba NZS dosledno spoštuje lokacijo stavbe, ki je pred odstranitvijo stala na istem mestu. Nova zgradba je v prostor postavljena kot avtonomen volumen, katerega belina jasno riše mejo med stoletnim delom narave in kreacijo človeških rok. 

Bistven element oblikovanja stavbnega volumna predstavlja usmerjanje pogledov proti okoliški naravni krajini. Uokvirjanje pogledov je tudi razlog za rahlo razprto tlorisno geometrijo stavbe. Vsako nadstropje je v tlorisu oblikovano v obliki črke U, pri čemer se pritličje odpira pogledom proti obstoječim kozolcem in športnim igriščem, medtem ko je nadstropje rotirano tako, da so iz notranjosti pogledi usmerjeni proti silhueti Savinjsko – kamniških alp. Središče rotacije predstavlja okrogel steklen atrij, ki mu dominirajo tri sadna drevesa. Okrogel atrij predstavlja tudi glavno ambientalno atrakcijo pri vstopu v objekt.

Stavba je organizirana kot neke vrste opazovalnica narave, saj so vse pisarne nameščene po obodu stavbe tako, da imajo uporabniki preko popolnoma zasteklene fasade kar se da neposreden stik z okoliško naravo. V nasprotju s pisarnami, pa so skupni prostori in hodniki preko ukrivljene steklene fasadne opne orientirani proti ozelenjenemu atriju in imajo preko terase v prvem nadstropju zagotovljene poglede proti oddaljenim gorskim vrhovom. 

Fasadna opna je razpeta med horizontalno geometrijo betonskih vencev in poudarjenimi vertikalami steklene fasade. Slednje so odsev jasne konstrukcijske zasnove, ki ima na južnem traktu obliko tri metre visokega Vierendelovega nosilca. Konstrukcijske osi, ki se kažejo na fasadi skupaj z lokacijami okenskih odprtin, ki odgovarjajo organizaciji pisarn, tvorijo navidez naključno kompozicijo fasadnega ovoja, ta pa nadaljuje ritem, ki ga v prostoru ustvarjajo vertikale debel bližnjega gozda.

Dodatne fotografije