Lokacija
Celje
Izvedba
2006-2007
Projekt
2005-2006
Natečaj
2004 (1. nagrada)
Investitor
Mestna občina Celje
Avtorji
Lena Krušec, Tomaž Krušec
Soavtor
Vid Kurinčič
Fotografije
Miran Kambič
Celjska koča
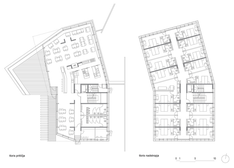
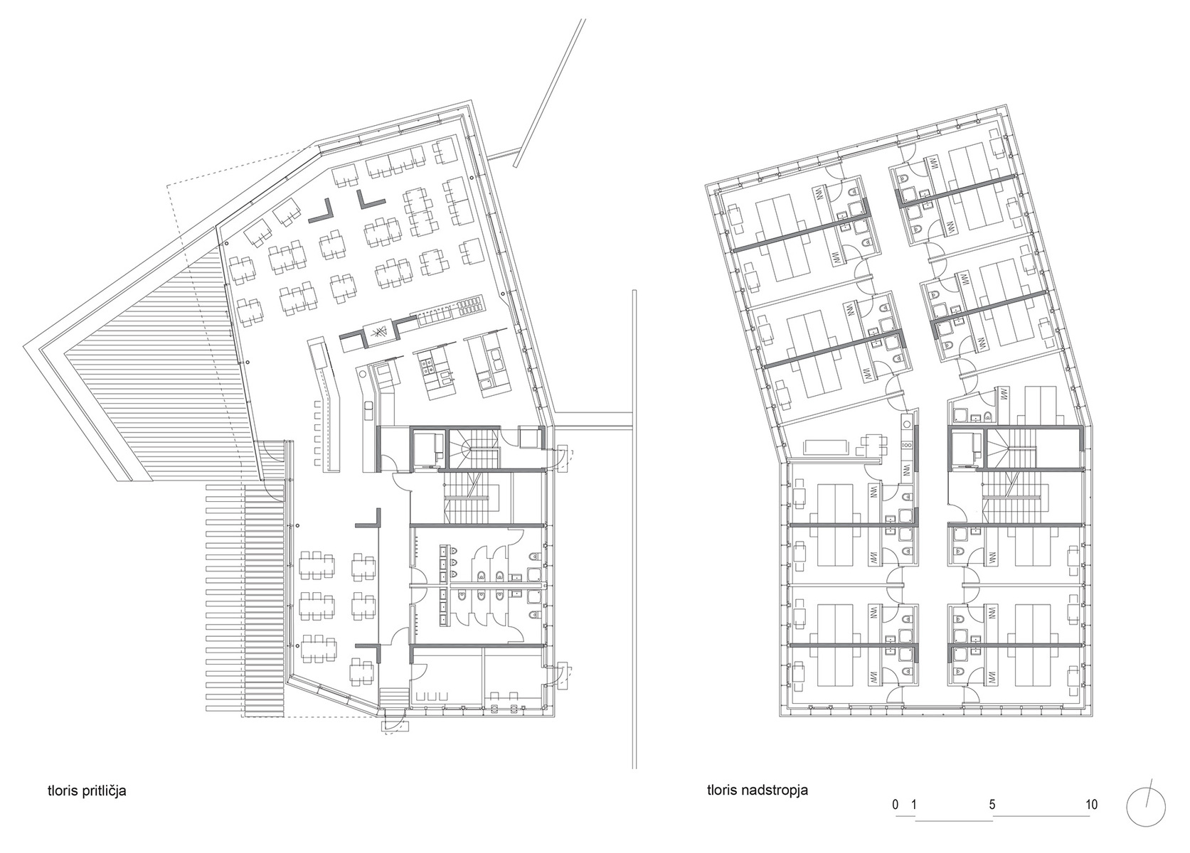
Oblika nove koče upošteva izpostavljeno lego objekta na obstoječem pobočju tako, da skupaj s sončno teraso tvori svojevrstno krajinsko dominanto – "landmark".
Volumen koče ima dvojno geometrijo. Zadnji del objekta upošteva topografijo obstoječega terena, medtem ko je sprednji del koče orientiran proti vrhu bližnjega hriba Grmada.
Panoramski pogled proti dolini predstavljajo glavno atrakcijo nove koče, zato je notranjost oblikovana tako, da je iz vsakega mesta mogoč usmerjen pogled proti okoliškim krajinskim vedutam.

Neločljiva povezanost z neokrnjeno okoliško naravo je očitna tudi na fasadi nove Celjske koče, saj je ta v celoti izvedena iz horizontalno položenih macesnovih letev. Princip dvoslojne lesene fasade je znan že stoletja in tako zaznamuje tradicionalno podobo pokrajine, katere neločljiv del je postala tudi Celjska koča.
